We Provide Semi-Automatic and Fully Automatic Parking Solutions
RR Parkon is a part of RR Global, a USD 1.25 billion conglomerate in the electric sector with a presence in more than 90+ countries globally that enjoys excellent brand equity across the globe. We are the pioneers to build an automated multilevel car parking system by using the latest technology and automated processes. Through automated machinery in the factories, we ensure that our products are of the highest quality. Created at our state of the art and India’s largest manufacturing facility.
This is an Independent parking system. System can be designed for combination of 2 Ton & 2.5 Ton payload capacities.
Twin Park system is ideal for bungalows and apartment owners as the system is easy to operate, maintain, and it consumes less power.
This system works on the clockwise/anticlockwise direction with the help of single motor.
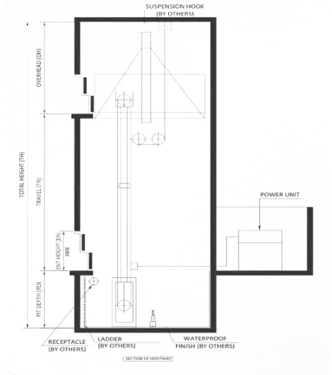
This system is preferably designed for the Car entry at the TOP i.e the ground floor and parking system BELOW i.e under the ground.
The floor space can be increased with the help of shuttle parking system and independent parking system.
Cost-effective parking solution with dependent vehicle stacking.